top of page

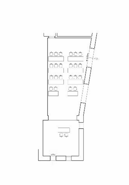
Sala Massa

La sala ha una superficie di 75mq. Dispone di un ampio porticato esterno dove poter allestire un desk di registrazione o la pausa caffè.

Allestimenti disponibili:

 

Platea: 60 persone

Ferro di cavallo: 35 persone

Banchi scuola: 30 persone

Cocktail: 80 persone

Centro Congressi - Piscina esterna - Centro Benessere Bibele Med Spa - Ristorante Le Volte - Palazzo Loup
Centro Congressi - Piscina esterna - Centro Benessere Bibele Med Spa - Ristorante Le Volte - Palazzo Loup
Centro Congressi - Piscina esterna - Centro Benessere Bibele Med Spa - Ristorante Le Volte - Palazzo Loup

Sala Massa - Planimetrie

Centro Congressi - Piscina esterna - Centro Benessere Bibele Med Spa - Ristorante Le Volte - Palazzo Loup
Centro Congressi - Piscina esterna - Centro Benessere Bibele Med Spa - Ristorante Le Volte - Palazzo Loup
Centro Congressi - Piscina esterna - Centro Benessere Bibele Med Spa - Ristorante Le Volte - Palazzo Loup
  • Whatsapp
  • Instagram
  • Facebook

Phone:  (+39) 051 65 44 040

Via S.Margherita, 21 Loiano (BO)

CIN IT037034A1RQAJPBPY

Thanks for submitting!

Palazzo Loup Spa P.IVA 00658851209 - C.F. 03761900376 - SDI: M5UXCR1 - |     CIN IT037034A1RQAJPBPY

bottom of page